您所在位置:首頁 > 案例展示 > 案例展示
Case Show
案例展示


以誠爲信,以信爲本,以質量、技術、服務求生存,以創新求發展, 堅持雙赢策略與用(yòng)戶共同成長(cháng)

我是分(fēn)類列表

    上海綠(lǜ)葉美(měi)容醫院牙片CT及口腔機房(fáng)進場(chǎng)施工

        哈爾濱鑫堅盾輻射防護設備有限公司近期爲上海綠(lǜ)葉美(měi)容醫院牙片CT及口腔機房(fáng)提供全方面的(de)防護設備和(hé)服務。這(zhè)一舉措旨在爲醫院的(de)口腔科技設備提供更加安全、可(kě)靠的(de)保障,爲患者健康保駕護航。


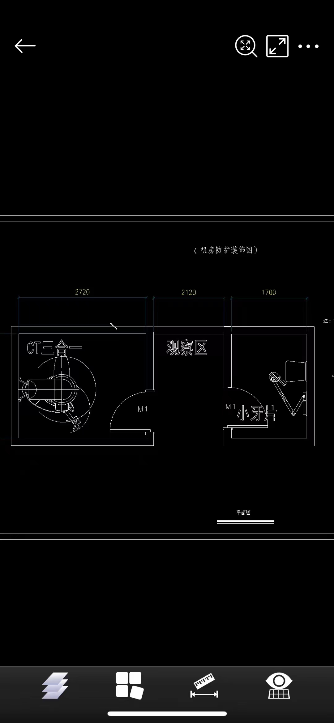
    施工圖


        哈爾濱鑫堅盾輻射防護設備有限公司是一家專業從事防護設備研發、生産和(hé)銷售的(de)企業。公司擁有高(gāo)素質的(de)技術團隊和(hé)優良的(de)生産設備,能夠爲客戶提供全方面的(de)防護解決方案。此次,哈爾濱鑫堅盾輻射防護設備有限公司将爲上海綠(lǜ)葉美(měi)容醫院的(de)牙片CT及口腔機房(fáng)提供一系列防護設備,包括防護門、防護窗(chuāng)、防護屏等,以确保醫院設備能夠在安全的(de)環境下(xià)運行。

        綠(lǜ)葉醫療是綠(lǜ)葉生命科學集團旗下(xià)專注醫療服務的(de)業務闆塊,通(tōng)過與先進醫療機構的(de)緊密合作,綠(lǜ)葉醫療緻力于将國際先進醫療技術、運營模式和(hé)創新的(de)管理(lǐ)體系引進中國市場(chǎng),建設中高(gāo)級别醫療服務機構,提供高(gāo)标準的(de)綜合醫療服務,以滿足患者和(hé)客戶更高(gāo)水(shuǐ)平的(de)健康需求,實現其成爲全球先進的(de)綜合性醫療集團的(de)企業願景。此次引入哈爾濱鑫堅盾輻射防護設備有限公司的(de)防護設備,将進一步提升醫院的(de)安全性和(hé)服務質量,爲患者的(de)健康保駕護航。


    上海綠(lǜ)葉美(měi)容醫院牙片CT及口腔機房(fáng)施工      上海綠(lǜ)葉美(měi)容醫院牙片CT及口腔機房(fáng)施工      上海綠(lǜ)葉美(měi)容醫院牙片CT及口腔機房(fáng)施工


        哈爾濱鑫堅盾輻射防護設備有限公司于近期進場(chǎng)施工,爲上海綠(lǜ)葉美(měi)容醫院牙片CT及口腔機房(fáng)進行全方面的(de)防護設備安裝和(hé)調試工作。相信在雙方的(de)共同努力下(xià),醫院的(de)口腔科技設備将能夠更加安全、可(kě)靠地爲患者服務。